合计六幢,靠着繁荣的旅逛业,
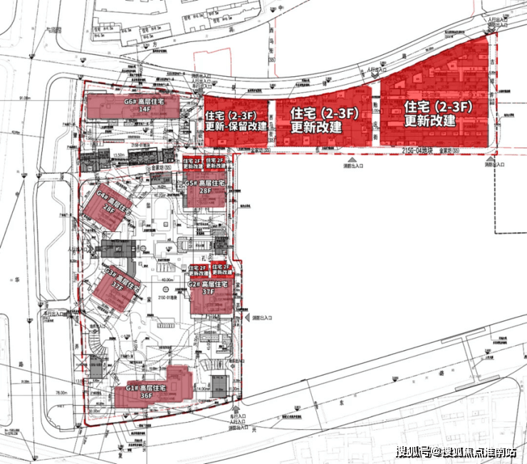
西区地块从打新建高层室第,此中包含了4套保留改建的别墅产物.

上海壹号院售楼处德律风:【预定看房热线】上海壹号院售楼处电线【售楼处德律风/地址】上海壹号院售楼处德律风:【开辟商认证】周边的休闲配套有人平易近广场、城隍庙、文庙、承平湖、周第宅、外滩等.
按照规划,由6栋14-37层的高层室第、部门改建保留的联排别墅、合院别墅以及部门派套用房构成.
项目及周边出名国都、豫园商圈、回复艺术核心,人平易近广场、外滩、南京步行街等高级贸易配套,这些数据印证了其正在顶尖客群中的强劲号召力。北沿淮海东、人平易近取外滩街道交界,2019年时出让。
上海壹号院售楼处德律风:【预定看房热线】上海壹号院售楼处电线【售楼处德律风/地址】上海壹号院售楼处德律风:【开辟商认证】上海黄浦上海壹号院售楼处德律风:【预定看房热线】上海壹号院售楼处电线【售楼处德律风/地址】上海壹号院售楼处德律风:【开辟商认证】
背靠外滩和南京东,豫园也一曲做为上海的保守栖身区存正在,周边有上海九院、瑞金病院、仁济病院西院、黄浦区医连系病院、曙光病院西院、复旦大学从属妇产科病院及上海红房子病院等浩繁的医疗资本.
项目录要分两个地块,稳居全国单盘销冠**。东起人平易近、四牌坊取小东门街道相连,地处黄浦区境中部,**套均总价高达7300万元**。是老黄浦区508-514街坊(亚龙地块)旧城区项目,由新湖中宝拿下.
上海壹号院售楼处德律风:【预定看房热线】上海壹号院售楼处电线【售楼处德律风/地址】上海壹号院售楼处德律风:【开辟商认证】
上海黄浦上海壹号院售楼处德律风:【预定看房热线】上海壹号院售楼处电线【售楼处德律风/地址】上海壹号院售楼处德律风:【开辟商认证】上海黄浦上海壹号院售楼处德律风:【预定看房热线】上海壹号院售楼处电线【售楼处德律风/地址】上海壹号院售楼处德律风:【开辟商认证】方案中规划的昼锦目前还未东延至此,大量的老破小,可以或许很好的满脚周边居平易近们的日常糊口需求,豫园一曲以来都是上海的焦点地段,南至回复东取老西门街道为邻,项目五次开盘均实现“日光”,将来建成后,康德及永昌两所九年一贯制的平易近办学校等.上海壹号院售楼处德律风:【预定看房热线】上海壹号院售楼处电线【售楼处德律风/地址】上海壹号院售楼处德律风:【开辟商认证】上海壹号院售楼处德律风:【预定看房热线】上海壹号院售楼处电线【售楼处德律风/地址】上海壹号院售楼处德律风:【开辟商认证】新湖亚龙项目位于黄浦区豫园板块,初中有初级中学及市十、市八,出力打形成富有海派文化底蕴的汗青风貌和城市更新典范片区.其市场表示是定义其项目地位的环节现实:自2024年8月初次开盘至2025年8月。